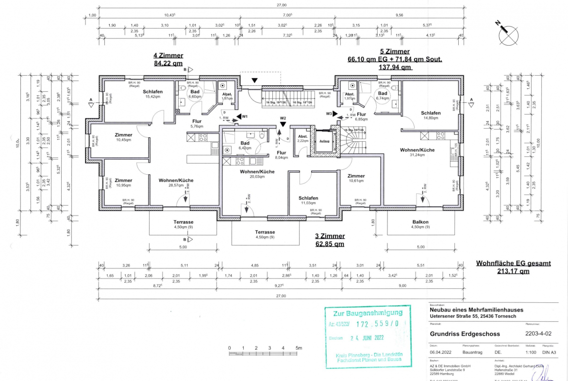
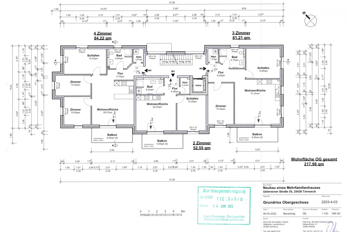
Exklusive Neubau Projekt, Kauf und Mietwohnungen als AZ&DE Immobilien GmbH ein Mehrfamilienhaus mit 8 Wohneinheiten mit 2 – 5 Zimmern. Die Wohnungsgrößen liegen zwischen 53 – 138 m²
Jede Wohnung verfügt über einen Balkon, Terrasse oder Dachterrasse. Ebenso verfügt jede Wohnung über ein Kellerabteil. Insgesamt stehen 9 Stellplätze zur Verfügung. Ein Fahrradkeller findet ebenfalls im Gebäude Platz. Das Gebäude wird nach dem Kfw 40+ Standart erbaut.

Dokumente zum Eigentum
Nr-5-Zechnungen-Baugenehmigung-Utersener-str.55-25436-Tornesch20220629_13271388_page-0006-rotated
Nr-5-Zechnungen-Baugenehmigung-Utersener-str.55-25436-Tornesch20220629_13271388_page-0005-rotated
Nr-5-Zechnungen-Baugenehmigung-Utersener-str.55-25436-Tornesch20220629_13271388_page-0004-rotated
Nr-5-Zechnungen-Baugenehmigung-Utersener-str.55-25436-Tornesch20220629_13271388_page-0003-rotated
Nr-5-Zechnungen-Baugenehmigung-Utersener-str.55-25436-Tornesch20220629_13271388_page-0002-rotated
Nr-5-Zechnungen-Baugenehmigung-Utersener-str.55-25436-Tornesch20220629_13271388_page-0001-rotated